El Vendrell
Referencia 8791 630.000 €
- Habitaciones: 4
- Baños: 4
- Superficie construida: 213,73 m²
- Superficie útil: 196,68 m²
- Superficie parcela: 400,00 m²
- INFORMACIÓN
- VER EN EL MAPA
- CERTIFICACIÓN ENERGÉTICA
Descubre esta espectacular casa a estrenar ubicada en Eden Park, en El Vendrell, a 2,5 km del mar.
Una vivienda completamente nueva que combina diseño, confort y unas bonitas vistas.
✨ Luz, amplitud y privacidad en cada rincón
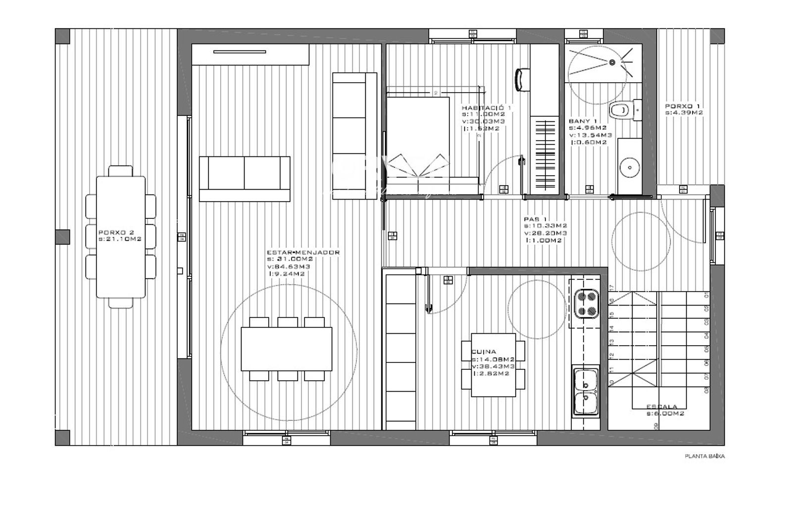
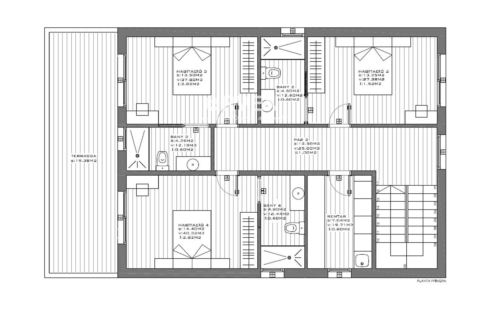
La vivienda se distribuye en dos plantas perfectamente diseñadas:
🔹PLANTA BAJA:
• Amplio y luminoso comedor con salida directa al jardín.
• Cocina totalmente amueblada y equipada con electrodomésticos.
• 1 habitación suite con baño privado.
🔹 PLANTA SUPERIOR:
• 3 habitaciones tipo suite, cada una con su propio baño completo.
• Lavadero independiente con numerosos armarios y espacio habilitado para lavadora y secadora.
En total, la casa dispone de 4 habitaciones suite y 4 baños completos, garantizando máxima comodidad e independencia para toda la familia.
🌿 EXTERIOR PENSADO PARA DISFRUTAR TODO EL AÑO:
• Jardín privado.
• Piscina con sistema de clorador salino.
• Acceso con puerta para vehículo y zona exterior para aparcamiento dentro de la parcela.
• Vistas totalmente despejadas.
🏡 CALIDADES Y EQUIPAMIENTO DE ALTO NIVEL:
• Carpintería interior de madera de roble maciza lacada en blanco.
• Carpintería exterior de aluminio con rotura de puente térmico, cristales laminados con control solar, marca Cortizo, series corvisión y hoja oculta.
• Suelo de gres tipo parquet.
• Luces led en toda la casa.
• Depósito de agua de 15.000 litros.
• Sistema de aerotermia (calefacción y aire acondicionado).
• Alarma interior instalada.
• Videoportero con cámara exterior.
• Puerta blindada.
• A 500 metros del campo de golf.
Una vivienda moderna, eficiente y lista para entrar a vivir, ubicada en una zona tranquila y privilegiada, perfecta tanto como residencia habitual como segunda vivienda.
Si buscas estrenar casa con espacio, privacidad y vistas excepcionales, esta es tu oportunidad.
CERTIFICACIÓN ENERGÉTICA
| Calificación energética | B |
| Calificación de emisiones | A |
| Consumo | 26 kWh / m² / año |
| Emisiones | 4 kgCO₂ / m² / año |




















































Compartir
